



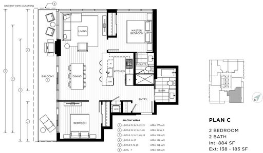
The modern city living in this elegant 2 bedroom, 2 bathroom home with 884 sq/ft. of bright, efficient space. Facing northeast, it features floor-to-ceiling windows, wide-plank laminate floors, and in-suite laundry for everyday comfort. The contemporary kitchen boasts Bosch and Blomberg appliances, quartz countertops, a gas cooktop, and a convection oven. Bathrooms...